

(рубрикатор)
1// введение 2// дух места 3// дух времени 4// архетип и прототипы 5// выводы и тех. задание 6// библиография
ВВЕДЕНИЕ
Реновация Дворца культуры «Невский» в современный культурный центр нацелена на то, чтобы модернизировать архитектурный объект советского наследия, который будет функционировать как многофункциональное общественное пространство с множеством площадок для развития, коммуникации и образования для всех возрастных групп.
зачем нужны подобные пространства?
Современные культурные центры являются важной частью городской инфраструктуры и выполняют ключевую роль в жизни города, объединяя в одном месте пространства для образования, развития творческих навыков.


пример реновации ДК «Серп и Молот» в современный культурный центр, Москва.
Они обеспечивают доступ к культуре и образованию для широкой аудитории, в них создают общественные пространства для общения и коммуникации, что способствует укрепления социальных связей между людьми.
Их программы отличаются своей гибкостью и многофункциональностью, что помогает КЦ быть универсальным и подстраиваться под разные форматы и потребности общества.
(цель)
Цель данного проекта — разработать современный многофункциональный центр развития общества, объединив в себе потребности современной молодежи, применив новые функции в разработке планировочных решений и реновации в целом, при этом сохранив архитектурное наследие здания.
(задачи)
— разработать многофункциональное пространство
При разработке планировочного решения в данном проекте важно учесть гибкое использование пространства для различных мероприятий и событий, а так же организовать общественные зоны для коммуникации, такие как коворкинги, лектории, пространства для клубов и сообществ.
— сохранить архитектурное наследие при реновации
Здание имеет яркую архитектуру, поэтому одной из задач является сохранить архитектурные и исторические особенности здания, при этом адаптировать его под современные функции развития.
— развитие современной и удобной для молодежи культурной среды
ДК «Невский» являлся центром неформальной культуры, поэтому в проекте важно не подавить его дух места и создать современные пространства, актуальные для молодежных сообществ.
— разработать пространство, интересное для всех возрастных групп
Современный культурный центр доступен для всех групп населения, поэтому необходимо разработать пространство не только для молодежи, но и для более взрослого поколения, чтобы проект был интересным любому желающему.
ДУХ МЕСТА
(историческая справка)
Дворец культуры «Невский» расположен в городе Санкт-Петербург по адресу: проспект Обуховской обороны, д. 32.
Здание является ярким представителем советского модернизма, хотя изначально проект был задуман в стилистике «сталинского ампира», спроектированный ведущим архитектором Евгением Левинсоном в 1955 году. Но спустя некоторое время ввиду изменений архитектурного облика Ленинграда, ДК уже не подходил под стилистический образ города и архитектору пришлось переделывать проект под новые стандарты.
1-й проект со «сталинским ампиром», 1953–1954 год / 2-й проект в стиле советского модернизма (реализованный), 1972 год
В 1950-х годах в СССР началась активная кампания против архитектурного «излишнего украшательства». После смерти И. В. Сталина и в период хрущевской оттепели предпочтения менялись, а именно постепенно стали уходить от монументальной коллонады, архитектурной помпезности и классических декораций.
И вот, спустя 13 лет, строительство дворца культуры возобновилось с обновленным составом. К Е. Левинсону присоединились архитекторы А., Григорьев Б. А., Земцов Ю. И., Райлян И. В., Лукьянов и инженер Петлюк А., которые вместе разработали новый проект и уже по ранее залитому фундаменту продолжили стройку.
Дворец культуры «Невский» сейчас после закрытия в 2015 году
— центр андеграунда
ДК «Невский» стал центром неформальной культуры Ленинграда сразу же после открытия, начиная выставлением живописи и неформальных художников и заканчивая выступлениями культовых рок-групп советской эпохи. Это место являлось центром развития андеграундовского искусства.
Так, с 10 по 20 сентября 1975 года здесь прошла вторая разрешеная властями выставка неофициальных художников. Это значительно подняло неформальную культуру на более официальный уровень
II и последняя выставка неофициальных художников в СССР в ДК «Невский», 1975 год / Встреча писателей — лауреатов заводского конкурса, 1980 год
Так же, ДК «Невский» стал одним из ключевый пространств музыкальной рок-культуры 1970 — 1980-х годов.
29 февраля 1974 года состоялось выступление джазовой рок-группы «Арсенал», после чего неформальное музыкальное развитие в ДК стало стремительно расти.
Поэтому уже на первом крупном концерте 4 мая 1981 года после создания молодежного движения «Ленинградский рок-клуб» здесь выступили такие группы как «Аквариум», «Пикник», «Мифы» и «Дилижанс».
IV фестиваль Ленинградского рок-клуба в ДК «Невский», на сцене Виктор Цой и другие рок-группы, 1986 год
Но самым значимым событие является IV фестиваль Ленинградского рок-клуба в 1986 году, где на одной сцене выступили культовые рок-группы такие как «Кино» с Виктором Цоем, «АукцЫон», «Зоопарк» и другие участники, которые оставили след в музыкальной рок-культуре.
(архитектурные особенности здания)
— функциональное зонирование
Композиционно, здание имеет монолитно параллелепипедную форму, в котором исходное функциональное зонирование представляло собой:
— просторный фойе с коллонадой — сцена со зрительным залом вмещаемостью на 800 человек. — репетиционные/танцевальные залы — гимнастический зал — клубные помещения (для кружков) — большой лекционный зал — фотолаборатория
Несущие конструкции здания выполнены из железобетонного каркаса с рядом колонн, характерным для советских дворцов культуры.
Конструктивная система включает монолитные и сборные железобетонные перекрытия, а так же ядра жесткости, обеспечивающие устройчивость зрительного зала.
Фасады представляют собой сочетание глухих стен, выполненных из железобетонных панелей и панорамного витражного остекления. Они обозначили входную группу и раскрывают интерьеры фойе.
разрез здания ДК «Невский»
Ассиметричная кровля выполнена из железобетонных плит и придает динамику архитектуре здания. 3-х уровневый выступ в фасаде здания ведет на открытую террасу, расположенная на перекрытии 4 этажа и может использоваться как крытое общественное пространство и смотровая площадка.
(ретроспективный анализ)
Основываясь на общих ретроспективных картах Петербурга и том факте, что левобережная зона Невы в конце XIX века активно обустраивалась промышленными районами, в том числе и район «Невская застава», можно сказать, что территория прошла этапы от малоосвоенной прибрежной зоны с редкими жилыми застройками до возникновения промышленного района.
Во многом таким изменениям поспособствовало наводнение в 1824 году, которое привело к локальному укреплению прибрежной зоны и постепенному переводу территории в пригодное для хозяйственного использования состояние.
После блокады Ленинграда происходит восстановление территорий и вследствии принят новый Генеральный план, который в отличие от предыдущего, где до 1948 концентрировались в основном на реконструкцию центральных районов, а промышленные зоны развивались хаотично и точечно, теперь город рассматривается в плане как единая система, где расширяют жилые районы вдоль промышленных зон и планируют культурные объекты на их территории.
На данный момент территория здания пустует, Дворец культуры был закрыт в 2015 году ввиду того, что администрация завода, которая владела дк «Невский», приняла решение, что здание больше не эксплуатируется должным образом и его необходимо закрыть, хотя многие жители были против.
— фотофиксация
открытая зона для занятий / главный вестибюль / малая сцена
На данный момент, интерьеры здания находятся в аварийном состоянии, но тем не менее главные архитектурные элементы советского модернизма сохранились.
антресоль над главным вестибюлем (2 этаж) / концертный зал / открытая зона для проведения мероприятий (2 этаж)
ДУХ ВРЕМЕНИ
(градостроительный анализ)
3д-проекция карты местности
В данном градостроительном анализе я подробно изучу как устроена территория вокруг Дворца культуры «Невский» и как она функционирует сегодня.
- разберу транспортную ситуацию, какие дороги проходят рядом, изучу маршруты общественного транспорта, а так же пешие маршруты.
— проанализирую структуру озеленения, разобью на разделы каждый, изучу какие типы озеления присутствуют в анализируемой зоне и проведу процентное соотношение секций между собой.
— изучу функциональное зонирование, а именно какие функции сосредоточены вокруг ДК и как они взаимодействуют.
— анализ транспортных схем передвижений
В границы анализированной территории вошел железнодорожно-транспортный узел, который сочетает в себе множество сценариев использования.
Железнодорожные пути ведут на Финляндский вокзал и оттуда выполняют ряд задач:
— грузовое передвижение
Здесь проезжают транзитные грузовые поезда: От станции Сортировочная-Московская / Волховстрой / Мга → через Финляндский мост → Удельная → Выборг → Финляндское направление и обратно.
— промышленные грузы внутри Санкт-Петербурга для снабжения пром.зон
— пригородные пассажирские электропоезда
Через Финляндский мост проходит Правобережное направление (Ладожский вокзал → Новое Девяткино → Сертолово / Кириши)
Ближайшая станция метро — «Елизаровская», находящаяся на Невско-Василеостровской (3) линии. на машине — 5 минут пешком — 15 минут (ведется автобус)
Одним с доступных маршрутов до ДК является автобус № 3мб, который ведет до ближайшей остановки «Невский завод» находящейся в 2-х минутах от места назначения. Автобус ведет от станции метро «Рыбацкая» до Дворцовой площади и обратно.
— озеленение
Район «Невская застава» остащен умеренным озеленением в силу его промышленности. В жилых районах расположились парки, скверы, озеленные территории, а рядом со школами — спортивные площадки.
Проведя анализ процентного соотношения между слоями озеленения, пришла к выводу, что зеленая зона преобладает именно в жилой зоне, которая располагается рядом с ДК «Невский». Наименьший процент составили бульвары, которые расположены вроль левобережья Невы и вроль дорог. Несмотря на пром.зону, район достаточно озеленен и пригоден для жилья.
— функциональное зонирование
В рамках исследуемого района преобладающей частью в данном процентном соотношении является жилая зона, которая в последнее время постепенно расширяется, что увеличивает целевую аудиторию для современного культурного центра.
Вблизи района распологаются и общественно-деловые зоны такие как: — школы — детские сады — институт токсикологии им. Бехтерева
(социологический анализ)
Согласно процентному соотношению функционального зонирования, бОльшую часть территории занимают именно жилая зона, которая находится в пешей доступности от ДК. После закрытия Дворца культуры местные жители создали форумы в соц.сетях, где обсуждают как вернуть и «возродить» ДК «Невский».
Проводив поиски информации я выяснила, что таких сообществ много, помимо соц сетей, где люди делятся своими комментариями и предположениями как можно вернуть всем так давно полюбившееся место. Среди них преобладающей целевой аудиторией стали возрастные группы от 30 до 60, которые застали ДК в рабочем состоянии и посещали в нем мероприятия.
— дети (4-12 лет)
Возрастная группа детей от 4 до 12 лет в функциональном зонировании культурного центра ориентирована на игровые и развивающие активности, творческие мастерские и кружки и интерактивые зоны. Особенно у первой половины присутствует большой спрос на ранее творчество.
Поэтому при проектировании сценариев использования для этой группы целевой аудитории важно учитывать:
— детские студии для развития мелкой моторики и креативного мышления — игровые комнаты — интерактивные общественные пространства— подростки (13-17 лет)
Возрастная группа людей от 13 до 17 лет уже является более самостоятельной аудиторией, где человек находится в поиске самого себя, своей идентичности и то что ему действительно интересно.
Здесь большой спрос вызывают: — студии для современного творчества (танцы, музыка, съемка видео-контента) — участие в культурных выступлениях и концертах — доступное пространство для свободного общения.
— молодёжь (18-30лет)
Молодые люди от 18 до 30 лет являются «золотой серединой» потребителей современных культурных центров.
Среди людей в этой возрастной группе очень популярен режим работы онлайн, поэтому для них важны тихие и шумные коворкинги, где каждый может выбрать пространство с подходящим уровнем тишины. Так же им важен комфорт, культурное разнообразие мероприятий и гибкие пространства.
— взрослые (30-60 лет)
Данная группа целевой аудитории от 30 до 60 лет уже обладает устройчивыми интересами, рабочим графиком и для них очень важен качественный вечерний досуг, где они смогут отдохнуть после тяжелого рабочего дня, поэтому при разработке сценариев использования пространства необходимо учесть:
— универсальные творческие мастерские — культурые программы — выставки— пожилые (60+)
Данная возрастная группа людей предпочетает спокойный и доступный досуг. Здесь в приоритете уютное пространство, программы по интересам и мероприятия с уклоном на поддержание здоровья и соц. активность. Например:
— танцевальные вечера — оздоровительные занятия — комфортные зоны отдыха — тихие залы для чтенияАРХЕТИП И ПРОТОТИПЫ
(архетип)
Реновация дворца культуры «Невский» — это переход от старой советской типовой модели дома культуры к многофункуциональному культурному центру с гибким планировочным решением, то есть к новому типу. Данный центр должен отвечать современным запросам людей, поддерживать различные виды творчества и быть доступным для всех групп пользователей.
В данном случае «архетипом» выступает «народный дом», возникший в Европе и в России в конце XIX — начале ХХ веков. Учреждение сочетало в себе библиотеки, театры, лекционные залы для просвещения рабочих.
Основная идея «народных домов» заключалась в создании общедоступных культурно-просветительских центров для широких народных масс, а именно рабочих, ремесленников и крестьян и была поставлена задача развивать внешкольное образование, бороться с неграмотностью и вести лекционную работу.
Введенский народный дом / Москва, 1903–1904 года.
зачем строили ДК при заводах?
— повышение культурного уровня рабочих
Изначально, дома культуры в СССР работали при том или ином заводе и выполняли определенную функцию:
Власть стремилась воспитать в духе рабочего культурного и образованного человека. Поэтому им предоставляли доступ к театрам, различным секциям и кружкам, библиотеке, концертам с помощью домов культуры.
— формирование идеологии
Строительство дворцов культуры при крупных промышленных предприятиях в СССР являлось частью стратегии формирования «нового советского человека».
После революции в 1917 году рабочего провозгласили центральной социальной фигурой, а завод — ключевым элементом развития страны. Поэтому государство целенаправленно переносило культурно-просветительную программу на территорию предприятий, тем самым воздействуя на повседневную жизнь рабочих, приобщая их к идеологии коллективизации.
— создание крепких социальных связей в коллективе
В советское время предприятия и заводы были не просто местом работы, а можно сказать центром жизни для рабочих. Для создания улучшенных условий, при заводах находились школы, поликлинники, выдавалось жилье рабочим и их семьям, магазины, стадион и конечно же Дворец культуры.
В то же время люди не только работали вместе, Дворец культуры объединял их по интересам, они посещали вместе мероприятия, кружки, провожать детей на занятия, выступать на различных концертах. Таким образом завод и его инфраструктура сплочали коллектив между собой, что приводило к возникновению крепких связей.
На сегодняшний день, ключевая задача реновации типового проекта дома культуры при заводе заключается в изменении первоначального «архетипа», а точнее модернизировать систему нацеленную на опрелеленную аудиторию в открытое пространство для любого желающего, при этом придавая ему функции современного простраства, учитывать современные интересы общества в использовании пространства.
(прототипы)
1// Культурный центр «ЗИЛ»
фотофиксация архивных фото фасадов ДК «ЗИЛ», 1931–1937 гг.

Дворец культуры (ныне Культурный центр) ЗИЛ при заводе имени Лихачева был построен в период с 1931 по 1937 года под руководством архитекторов братьев Весниных. ДК ЗИЛ является классическим памятником конструктивизма, который был построен одним из первых в стране и сохранил свой первоначальный облик до сегодняшних времен.
Здание состоит из 2-х частей: театральный и клубный корпуса. В театральном корпусе располагается большой зал на 800+ человек и просторный холл с частично снятым перекрытием. В клубном корпусе располагается основная часть творческого развития.
— главная цель проекта
Основной целью архитекторов являлось создать «прогрессивное и передовое пространство для строительства нового человека». Братья Веснины стремились организовать как можно больше пространств для развития и культурного образования, но при этом сохраняя гибкость планировки и задумки воздуха в пространстве.
— исходное зонирование
фотофиксация архивных фото внутри ДК «ЗИЛ», 1937 г.
Изначальное функциональное зонирование представляло собой стандартный для всех ДК состав помещений, но тем не менее проект предусматривал множество развитых групп:
— малый зрительный зал — кинозал — лекторий — большая библиотека с читальным залом — помещения для кружковых секций — хореографические классы — «зимний сад» (зона отдыха) — обсерватория — холл и фойе
что изменилось?
В 2007 году Культурный центр ЗИЛ перестает быть «дворцом культуры» и становится современным многофункциональным пространством с акцентом на театр, где открыли много новых пространств, в том числе и зал-конструктор, который полностью трансформируется и предназначен для театра и перморманса.
Так же появились мастерские и площадки для развития современных функций. КЦ активно работает с современным искусством, проводя различные мероприятия, выставки и сотрудничая с различными молодыми авторами.
схема расположения залов в КЦ «ЗИЛ»
«зимний сад» / лекторий
Сохранили архитектурный дух здания, его конструктивистские решения, реставрировали ключевые элементы здания, а именно «зимний сад», фойе, лестницы, коридоры и фасады.


читальный зал / наши дни
современное функциональное зонирование ДК «ЗИЛ»
взрыв-схема крыла культурного центра ЗИЛ


большой зал / зал-конструктор


колонный зал
2// Дворец культуры «Серп и Молот»
фотофиксация интерьеров дк «Серп и Молот», 1920–1930-е гг.
ДК при заводе «Серп и Молот» был построен в период с 1929 по 1933 года по проекту архитектора Игнатия Милинис. Проект разрабатывался в период формирования новой культурной инфраструктуры, когда все заводы и фабрики должны были иметь дом культуры.
Первоначально, здание выполняло функцию дворца культуры для металлургического завода «Серп и Молот», который является одним из крупнейших металлургических предприятий в СССР.
ДК «Серп и молот» до реконструкции, 1920-е / Обновленный проект Культурного центра «Серп и Молот», 2025 г.
планировочные решения 1 и 2 этажей ДК «Серп и Молот»

Дворец культуры «Серп и Молот» был построен в стилистике постконкструктивизма, что характерно для здания при наличии тяжелых объемов в конструкции фасада.
Отличительной чертой этого здания является четкая композиция из 2 корпусов, соединенные узким коридором, что можно проследить на плане.
Такое решение позволяло разделить пространство на несколько основных функций, а именно клубную, зрелищную и административную, при этом сохраняя визуальную цельность дворца культур.
— исходное зонирование
Дворец культуры включал в себя многофункциональный общественный комплекс который включал в себя:
— крупный зрительный зал примерно на 500 человек — просторное фойе с панорамным остеклением — помещения для различных секций и кружков — спортивные залы — просторная парадная лестница— что изменилось?
После того, как здание пробыло долгое время в аварийном состоянии, задачами было провести реконструкцию существующей архитектуры, восстановить исторические элементы, вернуть функции общественного центра, но при этом модернизировать пространство под современные функции, тем самым превратить его в современный арт-кластер.
главный холл
зал-трансформер (концертный зал)
зона отдыха (2 этаж)
3// Дворец культуры им. И. В. Русакова
фотофиксация фасадов Дома культуры имени И. В. Русакова, 1927–1929 гг.

Дом культуры имени И. В. Русакова, построенный в 1927–1929 годах по проекту архитектора Константина Мельникова, считается одним из самых ключевых памятников советского авангарда. Он стал важным примером того, как в 1920-е годы пытались создавать новые типы массовых культурно-просветительных учреждений и искать современные решения для общественных пространств.
1920-2000
Изначально, дворец культуры выполнял роль «клуба коммунальников» как многофункциональный центр для местного сообщества, объединяющий культурную, образовательную, социальную и спортивную функции.
исходное зонирование:
- главный трансформируемый зал для театральных постановок
- помещения для различных культурно-образовательных секций
- библиотека
- спортивный комплекс залов
- фойе, гардероб, вестибюль
Как и любой другой дом культуры в СССР, клуб союза коммунальников включал в себя систему разнообразия кружков с секциями, спортивный комплекс помещений с библиотекой и фойе внушающих размеров.
Но отличительной чертой этого памятника архитектуры стал фигурный трансформируемый зал с тремя выступающими балконами для дополнительных сидячих мест и большей просмотренности сцены, где целевой аудиторией потребления были драм кружки с театральными постановками.
планировочные решения 1 и 2 этажа / разрез здания
что изменилось?


главный трансформируемый зал / вид на партер и балкон
«Дом коммунальников " имени И. В. Русакова был отреставрирован и модернизирован под современные нужды общества, при этом сохранив ключевые для объекта пространства, например трансформируемый зал с балконами.


главный трансформируемый зал / вид на сцену
лестничная площадка, ведущая на сцену
4// Garage Museum of Contemporary Art / OMA
Музей современного исккусства Гараж и по совместительству культурное общественное пространство переехало в здание бывшего советского ресторана «Времена года» в Парке им. Горького в Москве в 1968 году.
фотофиксация павильона «Времена года», 1968 г.
Павильон после реновации, Музей современного искусства «Гараж» в Парке Горького / Москва, наши дни.
Реновацию здания проводило архитектурное бюро OMA из Германии, в результате чего проект был открыт в 2015 году и из заброшенного павильона- ресторана спроектировали современный музей с гибкими выставочными залами, образовательными и общественными пространствами, при этом сохранив часть советского духа, отреставрировав некоторые витражные элементы.
современные отреставрированны интерьеры от немецкого архитектурного бюро OMA
разрез (1) Музея современного искусства «Гараж» / фотофиксация фасада здания
разрез (2) Музея современного искусства «Гараж»
планировочные решения Музея современного искусства и культурного центра «Гараж»
почему произошла реновация?
Здание бывшего ресторана «Времена года» являлось типичным образцом советского модернизма.
Решение об преобразовании ресторана в музей современный культурный центр и музей современного искусства имеет ряд причин и является продуманных и стратегическим планом.:
функциональное зонирование Музея современного искусства и культурного центра «Гараж»
— Павильон был изначально предрасположен к подобной постройке засчет своей архитектуры, высоких потолков и огромного количества стеклянных конструкций, что пропускает очень много естесственного освещения. Так же павильон имел уже готовые залы для проведения выставок и мероприятий.
— Парк Горького является достаточно популярным общественным пространством. Музей, разместившись там, сразу получил большую и разнообразную аудиторию и отличную транспортную доступность.
— Архитекторы бюро OMA отреставрировали исторические витражи и «завернули» павильон в новый, легкий фасад из поликарбоната. Этот фасад скрыл технику, управляет светом и может использоваться для видео-арта, сделав само здание частью экспозиции и тем самым превратили символ советской эпохи в современное искусство.
схема расположения помещений в Музее современного искусства и культурного центра «Гараж»
ВЫВОД
В ходе написания предпроекного анализа по зданию Дворца культуры «Невский» и прилежащей к нему территории, исследование показало, что объект обладает значительным потенциалом для преобразования в современный культурный центр, но нуждается в комплексной реновации, которая включает в себя архитектурно-пространственные и функциональные изменения.
— выводы по градостроительному анализу
Анализ ретроспективных карт показал:
— район вдоль будущего проспекта Обуховской Обороны развивался от сельско-хозяйственных территорий и застроек до крупного промышленного узла, тесно связанный с Невским машиностроительным заводом.
— Дворец культуры «Невский» возник как часть тесно связанной инфраструктуры Невского завода с целью не только культурно просвещать рабочий класс машиностроительного завода, но и продвигать искусство андеграунда, символом и центром неформального развития которого он стал.
— анализ транспортных сценариев передвижения показал крупные потоки движения, а именно тяжелые грузовые составы, пассажирские электропоезда и маршруты, связывающие левый и правый берег Невы.
Подводя подытог данного раздела, можно сказать, что Дворец культуры «Невский» располагается в важном индустриальном узле Санкт-Петербурга, где культурный центр может стабилизировать инфраструктуру района и стать точкой роста городской активности.
— вывод по анализу озеленения и функционального зонирования
— район содержит в себе различные типы озеленения, а именно парки, бульвары, скверы, «зеленая зона» и спортивные площадки.
— рядом с Дворцом культуры отсутствует рекреационная зона, однако внешняя территория здания является зеленой зоной, поэтому можно рассмотреть реконструкцию благоустройства территории.
Как подытог, результат реновация Дворца культуры должен сохранять идею творчества и участия с акцентом на креативность и культурное развитие.
— концептуальные требования к проекту
— Сохранение идентичности
Необходимо сохранить историческую память района и композицию здания, подчеркнуть индустриальный характер территории актуальными материалами и сохранить исторически-значимые фрагменты интерьера.
— Гибкость
Все основные зоны функционального зонирования должны иметь возможность трансформироваться и быть многофункциональными. Так же все помещения должны легко перестраиваться под современные форматы событий.
— Прозрачность культуры
Внутренние пространства должны быть максимально открытыми для визуального пространства и связи между этажами, современные интерьеры, светлое фойе и открытые мастерские и рекреации.
— Доступность
Должны присутствовать доступные и безопасные условия и социально обустроенные пространства для всех возрастных групп.
— техническое задание для проектирования
Как я писала вначале исследования, целью данной реновации является превратить дворец культуры советской эпохи в современный многофункиональный культурный центр, который будет объединять лекционные, выставочные, образовательные и общественные функции.
После проведенного анализа, задачами проекта реновации являются:
— создать гибкие и универсальные культурные площадки, способные работать одновременно друг с другом.
— спроектировать культурный центр доступным и открытым для всех социальных и возрастных групп.
— сохранить архитектурную идентичность, но в то же время и сформировать новые веения.
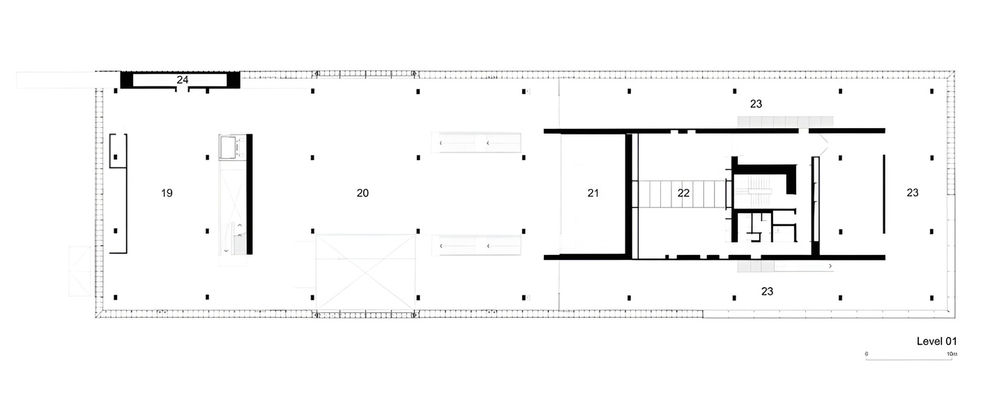
— планируемое функциональное зонирование
(1 этаж)

1 этаж является главным общественным уровнем и полностью открытым
Из функций предполагается:
— стойка reception — интерактивная зона — открытая зона библиотеки — кафе, — зона коворкинга — галерея с экспозициями (гибридное пространство) — гардероб и шоурум с сувенирами — открытая площадка для мероприятий (гибридное пространство)
(концертный зал)

Актовый зал со сценой предполагается как зал-трансформер, где будут проводиться различного рода события: — мероприятия, форумы, конференции — театральные постановки — лекции
(малый зал)

Функциональное зонирование предполагает быть разноформатным касаемо использования залов, поэтому помимо большого зала, планируется проектирование и малого зала для различных кинопоказов, презентаций и других камерный мероприятий.
Так же необходимо будет учесть трансформируемые кресла и мобильность в проектировании планировочных решений.
(центр творческого развития)

Блок центра творческого развития будет включать в себя: — художественные мастерские — музыкальные классы — танцевальные и хореографические студии, так же сдача залов в аренду — студии для съемок видео-контента и цифровых медиа
— общий вывод
В результате проведенного предпроектного анализа я выявила, что здание Дворца культуры «Невский» это уникальный объект с интересной историей, которую можно и даже нужно учесть в процессе его реновации в современный культурный центр.
Реновация должна решить ряд ключевых задач, а именно сохранение историзма и идентичности объекта, создать гибкие пространства и проект должен быть расчитан на широкую аудиторию для всех групп населения.
Таким образом, реновация ДК «Невский» будет важным культурным объектом на левом берегу Невы, укрепляя социальную часть района «Невская застава».
библиография
1. Бахтинов, М. И. Рабочая культура и досуг в СССР (1917–1960-е годы). — Москва, 2010.
2. Крук, Г. И. «Клубная деятельность на предприятиях Советского Союза». // Вестник истории, литературы, искусства.
3. «Клуб и дом культуры в СССР»: сборник статей. — М.: Искусство, 1961.
4. OMA. Garage Museum of Contemporary Art / OMA. Архиловерс. URL: https://www.archilovers.com/projects/56170/garage-museum-of-contemporary-art.html (дата обращения: 23.11.2025).
5. Werner Sobek. Moscow’s Garage Museum Opened: Engineering for Façade and Building Performance. WernerSobek.com. URL: https://www.wernersobek.com/news/moscows-garage-museum-opened/ (дата обращения: 23.11.2025).
6. Citywalls.ru. Дом культуры «Невский» (House 2452) // Citywalls.ru. — Режим доступа: https://www.citywalls.ru/house2452.html (дата обращения: 10.11.2025).
7. Дубяго Т. Б., Фомин И. А. Генплан Ленинграда. Фрагмент, 1948 г.
8. Лоскутова, М. В. Наводнение 1824 года изменило отношение к природной стихии… — НИУ ВШЭ. — 11 сентября. — Электрон. дан. — Режим доступа: https://www.hse.ru/news/science/1083297246.html HSE University
9. Rock-guide.ru. Пост об объекте [Электронный ресурс] // https://rock-guide.ru/post/63b58112d4930b046f71d5f6. — Дата обращения: (20.11.2025 г.)
10. Urban3p.ru. Объект 24688 [Электронный ресурс] // https://urban3p.ru/object24688. — Дата обращения: (20.11.2025 г.)
11. Ретромап.ру. Москва [Электронный ресурс] // https://retromap.ru/Москва. — Дата обращения: (01.11.2025 г.)
12. OpenStreetMap. Карта [Электронный ресурс] // https://www.openstreetmap.org/#map=16/59.90438/30.40973& layers=T. — Дата обращения: (20.11.2025)
13. Дворец культуры ЗИЛ[Электронный ресурс] // https://zilcc.ru/about. — Дата обращения: 19.11.2025.
14. Культурный центр ЗИЛ Москва[Электронный ресурс] // https://www.cultural.ru/institutes/32856/kulturnaya-centr-zil-g-moskvy. — Дата обращения: 19.11.2025.
15. Серп и Молот[Электронный ресурс] // https://www.archnadzor.ru/2008/06/01/serp-i-molot/. — Дата обращения: 13.11.2025.
16. Серп и Молот: история места[Электронный ресурс] // https://archi.ru/russia/50973/serp-i-molot-istoriya-mesta. — Дата обращения: 12.11.2025.
17. ВОЗРОДИМ ДК НЕВСКИЙ [Электронный ресурс]. — Режим доступа: https://vk.com/vozrodimdknevskiy?from=groups (дата обращения: 12.10.2025).
источники изображений
1. Дворец культуры ЗИЛ[Электронный ресурс] // https://zilcc.ru/about. — Дата обращения: 19.11.2025.
2. Серп и Молот: история места[Электронный ресурс] // https://archi.ru/russia/50973/serp-i-molot-istoriya-mesta. — Дата обращения: 12.11.2025.
3. OMA. Garage Museum of Contemporary Art / OMA. Архиловерс. URL: https://www.archilovers.com/projects/56170/garage-museum-of-contemporary-art.html (дата обращения: 23.11.2025).
4. Citywalls.ru. Дом культуры «Невский» (House 2452) // Citywalls.ru. — Режим доступа: https://www.citywalls.ru/house2452.html (дата обращения: 10.11.2025).
5. ВОЗРОДИМ ДК НЕВСКИЙ [Электронный ресурс]. — Режим доступа: https://vk.com/vozrodimdknevskiy?from=groups (дата обращения: 12.10.2025).
6. (Did you have a good time?): «Времена года», с 1968 г. [Электронный ресурс] // Музей современного искусства «Гараж». — URL: https://garagemca.org/ru/exhibition/i-did-you-have-a-good-time-vremena-goda-caf-since-1968-i (дата обращения: 23.11.2025).
7. Большая российская энциклопедия [Электронный ресурс]: научно-образовательный портал / БРЭ. — М. : БРЭ, [2004–2024]. — URL: https://old.bigenc.ru/education/text/3877495 (дата обращения: 23.11.2025).
8. Ретромап.ру. Москва [Электронный ресурс] // https://retromap.ru/Москва. — Дата обращения: (01.11.2025 г.)
9. OpenStreetMap. Карта [Электронный ресурс] // https://www.openstreetmap.org/#map=16/59.90438/30.40973& layers=T. — Дата обращения: (20.11.2025)